FIesta Square 14 Housing Development
Fourteen Units-
Four 2 Bedroom @ 1,400 sqft
Ten 3 Bedroom @ 2,000 sqft
Cafe & Retail Space @4,000 sqft
Four 2 Bedroom @ 1,400 sqft
Ten 3 Bedroom @ 2,000 sqft
Cafe & Retail Space @4,000 sqft
The recent Fayetteville Urban Corridor zoning change presents a valuable opportunity to introduce much needed missing middle housing within a growing area of the city. Our project takes advantage of this shift by transforming an overlooked paved lot behind an existing strip mall into a vibrant, inwardly
focused residential community. Centered around shared courtyards, the design fosters a sense of connection and retreat within an otherwise commercial context while bridging the gap between an apartment complex and single family homes. A small café with covered outdoor seating activates the ground plane, encouraging interaction among residents and visitors alike. Covered parking and direct access from a newly proposed road ensure convenience, while proximity to nearby amenities, such as a grocery store within a short 3–5 minute walk, an existing movie theater, restuaruants, and other buisnesses.
focused residential community. Centered around shared courtyards, the design fosters a sense of connection and retreat within an otherwise commercial context while bridging the gap between an apartment complex and single family homes. A small café with covered outdoor seating activates the ground plane, encouraging interaction among residents and visitors alike. Covered parking and direct access from a newly proposed road ensure convenience, while proximity to nearby amenities, such as a grocery store within a short 3–5 minute walk, an existing movie theater, restuaruants, and other buisnesses.
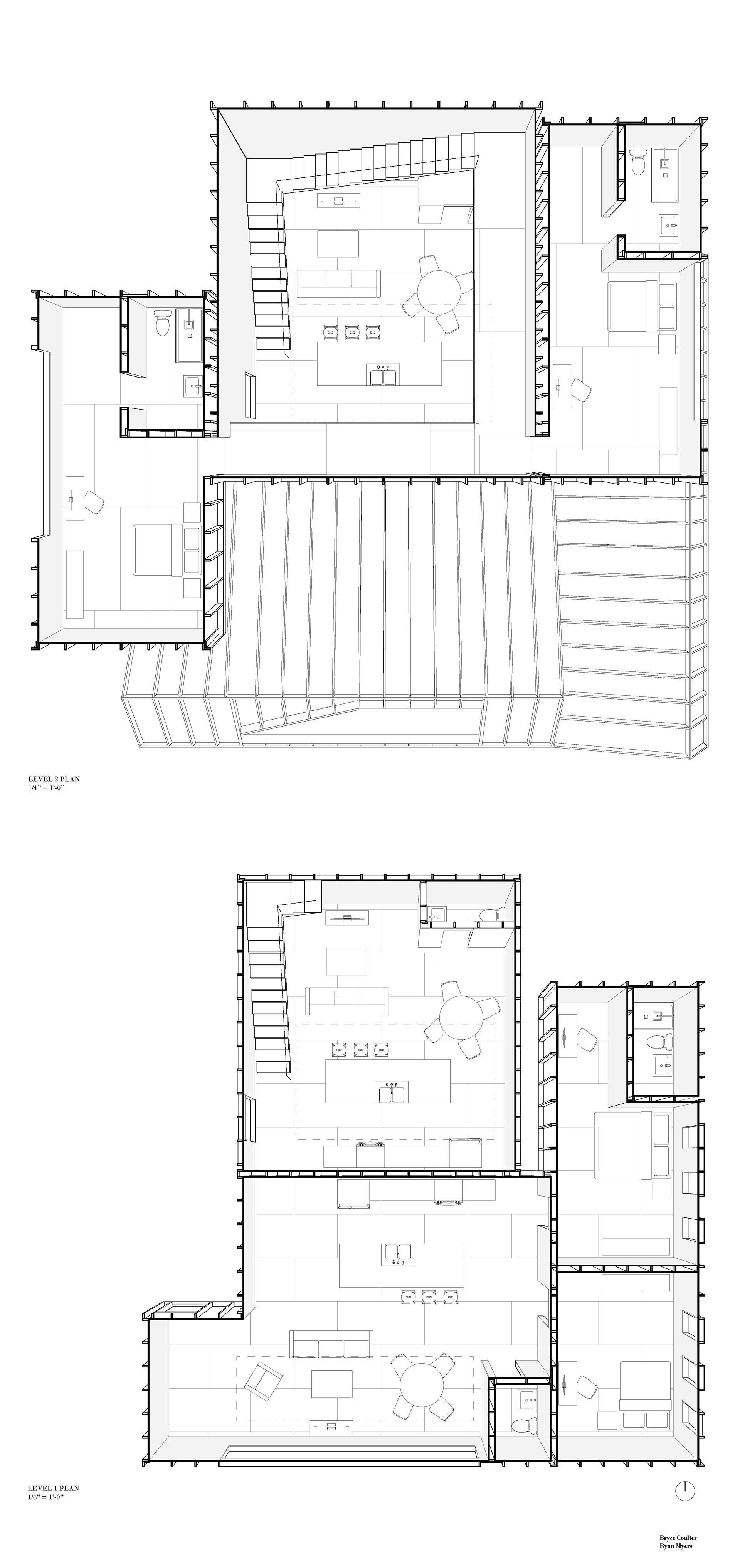
Excavated Dwelling
Two Units-
Unit One - 2 Bedroom, 2 Bath @ 1,100 sqft
Unit Two - 2 Bedroom, 3 Bath @ 1,200 sqft
Private Outdoor Spaces - 500 sqft each
Unit One - 2 Bedroom, 2 Bath @ 1,100 sqft
Unit Two - 2 Bedroom, 3 Bath @ 1,200 sqft
Private Outdoor Spaces - 500 sqft each
The design establishes two interrelated housing units organized around light, spatial efficiency, and a clear public-to-private gradient. Generous skylights and targeted apertures introduce balanced natural illumination, shaping the character of the shared living spaces. Unit One is arranged entirely at grade, with an open multiuse core and bedrooms set beyond. Unit Two mirrors this logic with a double-height entry space and upper-level bedrooms. Iterative development refined exterior terraces, structural efficiencies, and a shared architectural language expressed through intertwined volumes and exposed gable forms. Material selections and interior atmospheres emphasize warmth, verticality, and the experiential qualities created by natural light.